Cột Cần Vươn Là Gì?
Tại Mục 3.50 Điều 3 Quy chuẩn kỹ thuật quốc gia QCVN 41:2016/BGTVT về báo hiệu đường bộ có quy định về khái niệm cột cần vươn như sau:
Cột cần vươn là một dạng kết cấu treo biển báo hoặc đèn tín hiệu giao thông dạng cột bên đường có cần vươn ra đường. Cột cần vươn khi cần thiết được dùng cho đường có phần đường dành cho xe cơ giới theo một hướng từ 2 làn xe trở lên; nơi đường có tốc độ xe chạy cao; nơi có nhiều xe tải và xe buýt; nơi bị khuất tầm nhìn hoặc nơi đường có mật độ giao thông cao.

Tiêu Chuẩn Kỹ Thuật Cột Cần Vươn
- Cột được chế tạo phù hợp với tiêu chuẩn BS 5649.
- Vật liệu để chế tạo trụ phù hợp với các yêu cầu của tiêu chuẩn JIS G3101 (SS400) được kiểm tra lại bởi trung tâm III.
- Bu lông móng: Thép C45 hoặc tương đương. Đầu ren được cán lăn, mạ điện – Đạt cấp bền 5.8
- Mối hàn cột phù hợp với tiêu chuẩn AWS D1.1
- Mạ nhúng kẽm nóng, phù hợp tiêu chuẩn ASTM A123. Ngoài ra, cột có thể sơn sau mạ.
- Cột được sản xuất theo yêu cầu riêng của khách hàng.

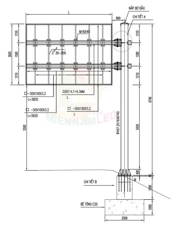
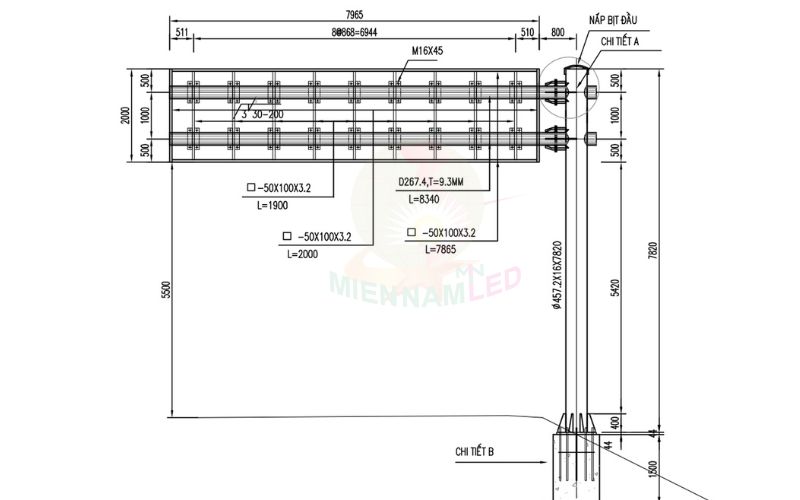
Cấu Tạo Của Cột Cần Vươn
Móng cột: Móng cột là nền tảng vững chắc cho toàn bộ hệ thống biển báo. Việc thiết kế móng đúng kỹ thuật, đảm bảo chịu lực tốt là yếu tố quyết định đến độ bền và an toàn của cột và biển báo. Các thông số thiết kế móng phải tuân thủ nghiêm ngặt các quy định của Bộ Tài nguyên và Môi trường để phù hợp với điều kiện tự nhiên tại từng địa phương.
Bản đế (có 2 loại bản đế: bản đế dùng để cố định chân trụ và mặt đất, bản đế dùng để nối cần vươn và chân trụ)
+ Chân trụ
+ Cần vươn
+ Biển báo trên cột cần vươn: cột cần vươn thường được sử dụng để lắp đặt các biển báo chỉ dẫn có kich thước lớn như: Biển IE.450a , Biển IE.450b, Biển IE.451a ,Biển IE.451b, Biển IE.452, Biển IE.453,..

Bản Vẽ Kỹ Thuật Trụ Cần Vươn





Sản Xuất Cột Cần Vươn
Công ty Chiếu Sáng Đô Thị Miền Nam tự hào là đơn vị sản xuất trực tiếp cột cần vươn và giá long môn phục vụ các dự án cao tốc trọng điểm. Với lợi thế xưởng sản xuất quy mô, chúng tôi cam kết gia công chính xác 100% theo bản vẽ kỹ thuật, đảm bảo chất lượng bền bỉ cùng mức giá gốc không qua trung gian. Bên cạnh năng lực sản xuất, đội ngũ kỹ sư của chúng tôi luôn sẵn sàng hỗ trợ tư vấn giải pháp và thi công lắp đặt trọn gói tại hiện trường.
Vị Trí Lắp Đặt Cột Cần Vươn
Cột cần vươn thường được lắp đặt ở những vị trí sau:
- Các đoạn đường có nhiều làn xe: Đặc biệt là ở những đoạn đường cao tốc, đường quốc lộ, nơi có lưu lượng xe cộ lớn và nhiều làn đường. Cột cần vươn giúp người lái xe dễ dàng nhận biết làn đường mình đang đi và các làn đường khác, từ đó tránh nhầm làn và đảm bảo an toàn giao thông.
- Các đoạn đường cong, đoạn đường có tầm nhìn bị hạn chế: Tại những vị trí này, cột cần vươn được lắp đặt để cảnh báo cho người lái xe về những tình huống nguy hiểm phía trước, giúp họ điều khiển xe an toàn hơn.

- Các khu vực giao nhau: Cột cần vươn được sử dụng để chỉ dẫn hướng đi, thông báo về các biển báo dừng, biển báo ưu tiên,… giúp người lái xe dễ dàng định hướng và lựa chọn hướng đi phù hợp.
- Các khu vực có công trình đang thi công: Cột cần vươn được sử dụng để cảnh báo người tham gia giao thông về khu vực nguy hiểm, hướng dẫn đường đi tạm thời.

Yêu Cầu Khi Lắp Đặt Cột Cần Vươn
Chân trụ của cột cần vươn thường được đặt ở lề đường, vỉa hè, dải phân cách hoặc đảo giao thông, cách mép ngoài phần đường xe chạy ít nhất 0,5m.

Xem Thêm Giá Long Môn
Công Ty Chiếu Sáng Đô Thị Miền Nam – Sản Xuất, Thi Công, Lắp Đặt Cột Cần Vươn
Với kinh nghiệm hơn 15 năm hình thành và phát triển, Công Ty Chiếu Sáng Đô Thị Miền Nam là đơn vị uy tín hàng đầu trong lĩnh vực sản xuất và thi công các sản phẩm chiếu sáng đường phố: giá long môn, trụ đèn chiếu sáng, trụ đèn cao áp, đèn đường LED, đèn pha LED,…

Công Ty Chiếu Sáng Đô Thị Miền Nam luôn cam kết:
- Sản phẩm chất lượng cao: được sản xuất trên dây chuyền hiện đại, kiểm tra nghiêm ngặt, đầy đủ các chứng nhận ISO,..
- Giá cả cạnh tranh: mang đến cho khách hàng những sản phẩm với mức giá hợp lý nhất.
- Dịch vụ chuyên nghiệp: đội ngũ nhân viên tư vấn nhiệt tình, hỗ trợ kỹ thuật chu đáo

Với phương châm “Uy tín – Chất lượng – Hiệu quả”, Công Ty Chiếu Sáng Đô Thị Miền Nam luôn nỗ lực mang đến cho khách hàng những sản phẩm và dịch vụ tốt nhất. Liên hệ với chúng tôi ngay để được tư vấn miễn phí!
Công Ty Chiếu Sáng Đô Thị Miền Nam
- Trụ sở chính: 224 Hoàng Cầm, Khu Phố 8, Phường Linh Xuân, Thành Phố Hồ Chí Minh.
- Điện thoại: 0984 567 468.
- Email: miennam.kt@gmail.com.
- Website: https://trudenchieusang.com/
DANH MỤC SẢN PHẨM ĐÈN TÍN HIỆU GIAO THÔNG
>> Xem thêm cột đèn giao thông
>> Xem thêm đèn tín hiệu giao thông
>> Xem thêm giá long môn
>> Xem thêm cột cần vươn






Đánh giá
Chưa có đánh giá nào.